LL glass railing profile
Technical specifications of ALVI:
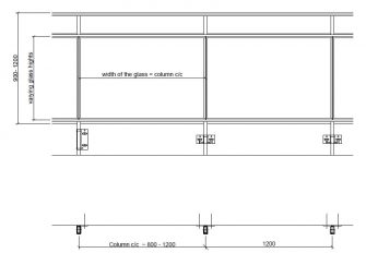
30 x 70mm square profile is used for the post. Handrail width 75 – 200mm (depending on the type of handrail)
We use 100% aluminum profiles according to the requirements of EN-AW 6060-T6 (GOST AD31) painted with powder paint according to RAL catalogue and pre-treated according to GSB requirements. All this will ensure the life of the profiles for long years
Can be mounted both on the balcony and the front edge of the balcony.

